Disclaimer: Not affiliated with or endorsed by Mercedes-Benz Motor Company. For informational purposes only. Full Disclaimer

2015 Mercedes-Benz Sprinter Fuse Box Diagrams & Locations

Mercedes-Benz Sprinter (w906) (2006 – 2017) – fuse box diagram

Shop From Amazon

Mercedes-Benz Sprinter (w906) (2006 – 2017) – fuse box diagram

Year of production: 2006, 2007, 2008, 2009, 2010, 2011, 2012, 2013, 2014, 2015, 2016, 2017

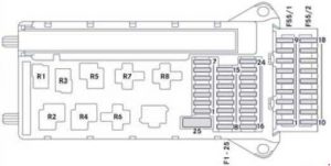
Main fuse box

Fuse box in the footwell on the left-hand side of the vehicle.

 
Mercedes-Benz Sprinter - w906 - fuse box diagram - main fuse box
Mercedes-Benz Sprinter – w906 – fuse box diagram – main fuse box
? Consumer A
1 Horn 15
2 ESTL (electric steering lock) ignition lock 25
3 Terminal 30 Z, vehicles with a gasoline engine/ ignition lock/instrument cluster 10
4 Light switch/switch unit on center console 5
5 Windshield wipers 30
6 Fuel pump
Terminal 87 (5)1
15
10
7 MRM (jacket tube module) 5
8 Terminal 87 (2) 20
9 Terminal 87 (1)
Terminal 87 (3), vehicles with a gasoline engine
Terminal 87 (3), vehicles with a diesel engine
25
20
25
10 Terminal 87 (4) 10
11 Terminal 15 R vehicle 15
12 Air bag control unit 10
13 Cigarette lighter/glove box lamp/radio/body manufacturer loading tailgate/PND (personal navigation device) power socket 15
14 Diagnostics connection/light switch/instrument cluster/deactivating reverse warning device/anti-theft protection with vehicle tracking 5
15 Headlamp range con- trol/front-compartment heating 5
16 Terminal 87 (1)
Terminal 87 (3)1
10
17 Air bag control unit 10
18 Terminal 15 vehicle/ brake light switch 7.5
19 Interior lighting 7.5
20 Front-passenger door power window switch/ terminal 30/2 SAM (signal acquisition and actuation module) 25
21 Engine control unit 5
22 Brake system (ABS) 5
23 Starter motor
Terminal 87 (6)1
20
10
24 Diesel engine, engine components/control unit, vehicles with a natural gas engine NGT2 10
25 12 V socket (center console) for tire sealant 25
Fuse block F55/1
1 Driver’s door control unit 25
2 Diagnostics connection 10
3 Brake system (valves) 25
4 Brake system (delivery pump) 40
5 Terminal 87 (2a) engine M272, OM651
Terminal 87 (2a) engine OM642, OM6513
7.5
6 Terminal 87 (1a) engine OM6426
Terminal 87 (1a) engine OM6516
Terminal 87 (3a) engine M272, M271, OM651
10
7.5
7.5
7 Headlamp cleaning system 30
8 Anti-theft alarm system (ATA)/beacon/beacon with siren 15
9 Additional turn signal module 10
Fuse block F55/2
10 Radio 1 DIN
Radio 2 DIN
15
20
11 Mobile phone/tachograph/additional recorder4/navigation cradle6 7.5
12 Front blower/auxiliary heating blower setting 1 30
13 Auxiliary heating system digital timer/radio receiver/DIN slot basic wiring/FleetBoard/antitheft protection with vehicle tracking 7.5
14 Seat heating 30
15 Brake system control unit 5
16 Heating, rear compartment heating/ front-compartment air conditioning 10
17 Convenience lighting
Motion detector
Reading and cargo compartment lamp (courier vehicles)
Cargo compartment lighting
10
7.5
10
7.5
18 Rear-compartment air-conditioning system 7.5
Relays
R1 Horn relay
R2 Windshield wiper setting 1/2 relay
R3
Fuel pump relay5
Starter relay, terminal 151
R4 Windshield wipers on/off relay
R5 Starter relay, terminal 50
R6 Relay, terminal 15 R (normally open contact)
R7 Engine control unit relay, terminal 87
R8 Relay, terminal 15 (reinforced relay)
1 – Vehicles with code MI6/MH3/XM0.
2 – Natural Gas Technology.
3 – NAFTA
4 – Latin America only.
5 – Not on vehicles with code MI6/MH3/XM0.
6 – Vehicles with code XM0.

Pre-fuse box in the battery compartment in the footwell on the left-hand side of the vehicle F59

Mercedes-Benz Sprinter w906 - fuse box diagram - battery component
Mercedes-Benz Sprinter w906 – fuse box diagram – battery component
? Consumer A
1 Preglow relay
Secondary air pump for vehicles with a gasoline engine
80
40
2 Air-conditioning system coolingfan – cab without partition and without rear-compartment air-conditioning system
Air-conditioning system cooling fan – cab with partition and reinforced without rear-compartment air-conditioning system
Air-conditioning system cooling fan – cab/ Electrical suction fan
Starter relay, terminal 156
Starter relay unsupported6
60
40
40
25
25
3 SAM (signal acquisition and actuation module)/SRB (fuse and relay module) 80
4 Auxiliary battery/ retarder
Rear-compartment air-conditioning system
150
80
5 Terminal 30 pre-fuse boxes, SAM (signal acquisition and actuation module)/SRB (fuse and relay module)
Terminal 30 electrical heater booster (PTC) input6
150
Bridge
6 Connection point on the base of the seat
Pre-fuse box in the base of the seat6
Bridge
Bridge
7 Rear-compartment air-conditioning system
Electrical heater booster PTC
80
150
6 – Vehicles with code XM0

Pre-fuse box at the base of the driver’s seat (only for auxiliary battery) F59/7

Mercedes-Benz Sprinter w906 - fuse box diagram - Pre-fuse box at the base of the driver's seat (only for auxiliary battery) F59/7 ` class=`size-full wp-image-22613` height=`148` loading=`lazy` src=`/uploads/ef2/e9b/8f3/ef2e9b8f38c95ce4b478c8db5394c8bd.jpg` width=`255` />

<figcaption class=`wp-caption-text` id=`caption-attachment-22613`>Mercedes-Benz Sprinter w906 – fuse box diagram – Pre-fuse box at the base of the driver’s seat (only for auxiliary battery) F59/7</figcaption>
</figure>

<table class=`table table-hover table-bordered` style=`width: 498px;`>
	<tbody>
		<tr>
			<td align=`center` style=`width: 34px;` width=`30`><b>?</b></td>
			<td align=`center` style=`width: 417px;`><b>Consumer</b></td>
			<td align=`center` style=`width: 49px;` width=`30`><b>A</b></td>
		</tr>
		<tr>
			<td align=`center` style=`width: 34px;`>1</td>
			<td style=`width: 417px;`>Unassigned</td>
			<td align=`center` style=`width: 49px;`>–</td>
		</tr>
		<tr>
			<td align=`center` style=`width: 34px;`>2</td>
			<td style=`width: 417px;`>SAM (signal acquisition and actuation module)/SRB (fuse and relay module)</td>
			<td align=`center` style=`width: 49px;`>80</td>
		</tr>
		<tr>
			<td align=`center` style=`width: 34px;`>3</td>
			<td style=`width: 417px;`>Unassigned</td>
			<td align=`center` style=`width: 49px;`>–</td>
		</tr>
		<tr>
			<td align=`center` style=`width: 34px;`>4</td>
			<td style=`width: 417px;`>Auxiliary battery input</td>
			<td align=`center` style=`width: 49px;`>150</td>
		</tr>
		<tr>
			<td align=`center` style=`width: 34px;`>5</td>
			<td style=`width: 417px;`>Connection point on the base of the seat Pre-fuse box at the base of the seat</td>
			<td align=`center` style=`width: 49px;`>Bridge</td>
		</tr>
		<tr>
			<td align=`center` style=`width: 34px;`>6</td>
			<td style=`width: 417px;`>SAM (signal acquisition and actuation module)/SRB (fuse and relay module), terminal 30 fuse box</td>
			<td align=`center` style=`width: 49px;`>150</td>
		</tr>
		<tr>
			<td align=`center` style=`width: 34px;`>7</td>
			<td style=`width: 417px;`>Additional battery input Connection for socket fuse on vehicles with additional battery</td>
			<td align=`center` style=`width: 49px;`>Bridge</td>
		</tr>
		<tr>
			<td align=`center` style=`width: 34px;`>8</td>
			<td style=`width: 417px;`>Retarder in combination with battery cutoff relay</td>
			<td align=`center` style=`width: 49px;`>100</td>
		</tr>
		<tr>
			<td align=`center` style=`width: 34px;`>9</td>
			<td style=`width: 417px;`>Additional battery</td>
			<td align=`center` style=`width: 49px;`>150</td>
		</tr>
		<tr>
			<td align=`center` style=`width: 34px;`>10</td>
			<td style=`width: 417px;`>Snowplow hydraulic pump Loading tailgate Tipper</td>
			<td align=`center` style=`width: 49px;`>250</td>
		</tr>
	</tbody>
</table>

<h3>Pre-fuse box at the base of the driver’s seat (only for auxiliary battery) F59/8</h3>

<figure aria-describedby=`caption-attachment-22615` class=`wp-caption alignnone` id=`attachment_22615` style=`width: 249px`><a href=`/uploads/a76/730/240/a76730240d1623f42d2f4e66376d1c2a.jpg`><img alt=`Mercedes-Benz Sprinter w906 - fuse box diagram - Pre-fuse box at the base of the driver's seat (only for auxiliary battery) F59/8
Mercedes-Benz Sprinter w906 – fuse box diagram – Pre-fuse box at the base of the driver’s seat (only for auxiliary battery) F59/8
? Consumer A
11 Terminal 30 starter battery input Bridge
12 Unassigned
13 Electrical heater booster (PTC)
Rear-compartment air-conditioning system
150
80
14 Air-conditioning system coolingfan – cab without partition and without rear-compartment air-conditioning system
Air-conditioning system cooling fan – cab with partition and reinforced without rear-compartment air-conditioning system
Air-conditioning system cooling fan – cab open vehicle model designation
Electrical suction fan
60
40
40
70
15 Unassigned  
16 Retarder not in combination with battery cutoff relay
Battery cutoff relay
100
150
17 Unassigned
18 Alternator 300

Fuse box under the left front seat

Fuse box on the outside of the seat base.

Mercedes-Benz Sprinter w906 - fuse box diagram - under left front seat
Mercedes-Benz Sprinter w906 – fuse box diagram – under left front seat
? Consumer A
Fuse block F55/3
1 Mirror setting/rear window defroster 5
2 Rear window wiper 30
3 Auxiliary heating, digital timer/rear view camera/neutral gate switch, starting-off aid and allwheel drive/engine runon/DIN slot basic wiring (roof)/FleetBoard/anti-theft protection with vehicle tracking/emergency hammer lighting in the rear compartment 5
4 Tachograph/ADR working speed governor/ power take-off/AAG (trailer control unit) 7.5
5 ECO Start/control unit
EGS (electronic gearbox control)
5
10
6 All-wheel drive control unit
Auxiliary oil pump
5
10
7 ESM (electronic selector module) 10
8 Loading tailgate/tipper vehicle PARKTRONIC6 10
9 Rear compartment air conditioning, compressor clutch, disengagea-ble reverse warning device 7.5
Fuse block F55/4
10 Terminal 30, body/ equipment manufacturer 25
11 Terminal 15, body/ equipment manufacturer 15
12 D+, body/equipment manufacturer 10
13 Fuel pump FSCM (Fuel Sensing Control Module)
Fuel pump relay1,3
20
15
14 Trailer power socket 20
15 Trailer recognition unit 25
16 Tire pressure monitor PARKTRONIC7 7.5
17 Programmable special module (PSM) 25
18 Programmable special module (PSM) 25
Fuse block F55/5
19 Overhead control panel without ATA (Anti-Theft Alarm system) and without rain sensor
Overhead control panel with ATA (Anti-Theft Alarm system)
Overhead control panel with rain sensor
5
25
25
20 License plate lamp (courier vehicles)/perimeter lamp3/identification lighting3 7.5
21 Terminal 30, body electrics (courier vehicles)
Rear window defroster without ATA (Anti-Theft Alarm system)
Rear window defroster with ATA (Anti-Theft Alarm system)
15
30
15
22 Rear window defroster 2
Vehicle socket (courier vehicles)
15
20
23 12 V left rear socket, load/rear compartment
Electric system: non-MB body
15
10
24 12 V socket under the base of driver’s seat 15
25 12 V right rear socket, load/rear compartment 15
26 Hot-water auxiliary heating 25
27 Electrical heater booster (PTC)
Auxiliary warm-air heater
25
20
Fuse block F55/6
28 SRB starter relay (fuse and relay module)36 Starterfor electrical supply support using the additional battery 25
29 Terminal 87 (7), gas system, vehicles with a natural gas engine (NGT)2
SCR8 control unit, vehicles with exhaust gas aftertreatment3
Terminal 30, all-wheel drive, control unit
7.5
10
30
30 Auxiliary heat exchanger fan
Brake booster3
15
30
31 Rear compartment heating blower
Sliding door closing assistance, left
Electric sliding door, left
30
15
30
32 SCR8 relay supply, vehicles with exhaust gas aftertreatment
KEYLESS ENTRY
5
10
33 Electric sliding door, right
Sliding door closing assistance, right
ENR (level control) control unit
Compressor air suspension
30
15
30
30
34 SCR8 heater 3 DEF (Diesel Exhaust Fluid) supply reservoir, vehicles with exhaust gas aftertreatment, 6 cyl. diesel9,3
SCR8 heater 1 DEF®, vehicles with exhaust gas aftertreatment diesel10
15
20
35 SCR8 heater 2 hose, vehicles with exhaust gas aftertreatment, 6 cyl. diesel9,3
SCR8 heater 2 DEF, vehicles with exhaust gas aftertreatment diesel10
15
25
36 SCR8 heater 1 delivery pump, vehicles with exhaust gas aftertreatment, 6 cyl. diesel9,3
SCR8 heater control 3 DEF, vehicles with exhaust gas aftertreatment diesel10
10
15
Fuse block F55/7
37 COLLISION PREVENTION ASSIST/FCW (Forward Collision Warning)
Blind Spot Assist/BSM (Blind Spot Monitor)
5
5
38 Multifunction camera with Highbeam Assist
With a warning when leaving a lane
10
10
39 Body electrics (courier vehicles)
Rear-compartment air-conditioning system
Roof ventilator
Siren
7.5
7.5
15
15
40 Auxiliary battery charge current11 15
41 SAM (signal acquisition and actuation module) auxiliary battery reference voltage11 7.5
42 Rear-compartment air-conditioning system 30
43 Electrical step/sliding door, right 10
44 Electrical step/sliding door, left 10
45 Electrical step, control system and warning buzzer 5
1 – Vehicles with code MI6/MH3/XM0.
2 – Natural Gas Technology.
3 – NAFTA
6 – Vehicles with code XM0.
7 – Pre-facelift vehicle.
8 – Selective Catalytic Reduction.
9 – Vehicles with code MH3.
10 – Not for vehicles with code MH3.
11 – Vehicles with auxiliary battery.

Relays in the seat base of the left front seat

Mercedes-Benz Sprinter w906 - fuse box diagram - relays in the seat base of left the front seat
Mercedes-Benz Sprinter w906 – fuse box diagram – relays in the seat base of left the front seat
? Relays Description
R1 K6 Starter relay, right-hand drive6
R2 K41 Load relief relay, terminal 15
R3 K41/5 Starter relay, terminal 15
R4 K64
K110
Secondary air injection/secondary air pump relay
SCR relay8, vehicles with exhaust gas aftertreatment
R5 K27 Fuel pump relay
R6 K23/1 Blower relay, front, blower setting 1
R7 K41/2 Load relief relay, terminal 15 R
R8 K6/1
K6
Starter relay, additional battery
Starter relay, left-hand drive6
R9 K13/5 Rear window defroster relay 1
R10 K13/6
K51/15
Rear window defroster relay 2 with ATA (Anti-Theft Alarm system)
Snow plow relay, low-beam headlamps, left
R11 K117/3
K51/16
Electrical step relay 1, left
Snow plow relay, low-beam headlamps, right
R12 K117/4
K51/17
Electrical step relay 2, left
Snow plow relay, high-beam headlamps, left
R13 K41/3
K51/18
Load relief relay, terminal 15 (2)
Snow plow relay, high-beam headlamps, right
R14 K13/7 Windshield heating relay 1
R15 K88 Body manufacturer relay, terminal 15
R16 K88/1 Body manufacturer relay, terminal 61 (D+)
R17 K95 K93 Loading tailgate basic wiring relay Comfort illumination relay
R18 K2 Headlamp cleaning system relay
R19 K51/10 Beacon with siren relay
R20 K39/3 ATA (anti-theft alarm system) relay, horn
R21 K108 K116 K23/2 Perimeter/identification lighting relay3 License plate lamp relay (courier vehicles) Blower relay, hot-air auxiliary heating, blower setting 1
R22 K23/3 Blower relay, hot-air auxiliary heating, blower setting 2
R23 K39/1
K124/1
Siren relay
Terminal 61 (D+) relay, anti-theft protection with vehicle tracking
R24 K117/1 Electrical step relay 1, right
R25 K117/2 Electrical step relay 2, right
R26 K121
K124
Reverse warning device off relay
Anti-theft protection with vehicle tracking relay
3 – NAFTA
6 – Vehicles with code XM0.
8 – Selective Catalytic Reduction.

Other relays

? Relays Description
K57 Battery cutoff relay, left-hand-drive vehicle
K57/4 Battery cutoff relay, right-hand-drive vehicle
K9 Air-conditioning system relay, auxiliary fan (duo)
K9/2 Air-conditioning system relay, auxiliary fan (mono)
K9/5 Rear-compartment air conditioning relay, auxiliary fan
K120 Auxiliary battery relay11
11 – Vehicles with auxiliary battery.

WARNING: Terminal and harness assignments for individual connectors will vary depending on vehicle equipment level, model, and market.

Shop From Amazon